Корзина (0)
Ваша корзина пуста!

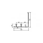
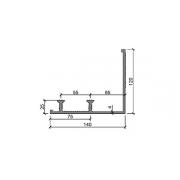
Гидрошпонки АКВАСТОП тип ХОС-УГЛ