Гидрошпонка ДО-УГЛ-170/20-6/25
| ПОРЯДОК УСТАНОВКИ | Технологический регламент ТР 186-07 Технологическая карта РБ № ТТК-100299864.196-2014 |
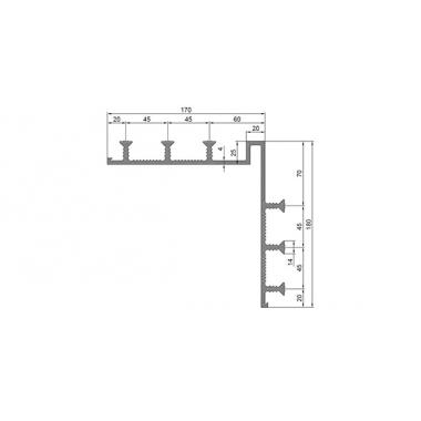
| МОНТАЖНАЯ СХЕМА | ![]() |
| ТЕХНИЧЕСКИЕ ХАРАКТЕРИСТИКИ | |
| ПРИМЕЧАНИЕ | ДО-УГЛ-170/20-6/25 стыкуется с ДО-320/20-6/25; ДО-УГЛ-180/40-6/30 стыкуется с ДО-320/40-6/30; ДО-УГЛ-185/50-6/30 стыкуется с ДО-320/50-6/30; ДО-УГЛ-210/58-6/30 с другими гидроизоляционными шпонками не стыкуется. |
| ТЕХНИЧЕСКИЕ ДАННЫЕ МАТЕРИАЛА | Вы можете посмотреть здесь |
| СЕРТИФИКАТЫ | Техническое свидетельство РБ – ТС № 06.1375.20 от 01.04.2020г. Сертификат соответствия Госстроя России № POCC RU.АЯ46.Н00840 от 25.01.2019 г. Санитарно-эпидемиологическое заключение №77.01.09.П.009689.10.13 от 02.10.2013г. |
| ХРАНЕНИЕ | Изделия следует хранить в закрытых помещениях при температуре не выше 30 °С, не подвергать деформирующим нагрузкам, защищать от воздействия прямых солнечных лучей, нефтепродуктов и органических растворителей. |
| УПАКОВКА | ПВХ-П шпонки - бухты по 20 пог.м. По согласованию возможна поставка бухт необходимой потребителю длины. |
| Давление воды, МПа | 0,51 |
| Материал | ПВХ-П |
| Растяжение | 50 |
| Сжатие | 8 |

